This beautifully presented townhouse in the heart of Hamlyn Terrace offers a perfect blend of comfort and convenience.
Perfect for first-time buyers, investors, or those looking to downsize without compromising on quality, this property presents immense value in a highly sought after location.
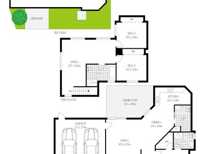
* Open-plan living and dining area filled with natural light, perfect for entertaining or relaxing with family
* Generously sized bedrooms and contemporary bathroom designed with functionality in mind, additional ensuite of master bedroom
* Private and low maintenance courtyard, ideal for weekend entertaining
* Double lockup garage with ample storage
* Premium finishes throughout including ceiling fans and ducted air-conditioning
* Close to local schools, parks, shopping centres, and public transport, offering a lifestyle of ease and accessibility
All information contained herein is gathered from sources we believe to be reliable. However, we cannot guarantee its accuracy and interested persons should rely on their own enquiries. Figures and details are subject to change without further notice.
Land Size Approx. 373 sqm
Strata Approx $750 p.q
Rates Approx. $1,169.97 p.a.
Water Rates Approx. $1,062.99 p.a.
Rental Approx. $600 - $650 p.w













